Toggle navigation
首页
走进荣耀
别墅案例
别墅图纸
别墅咨询
别墅招聘
别墅新闻
联系我们
欧式别墅
中式别墅
美式别墅
日式别墅
地中海别墅
别墅图纸
欧式别墅
中式别墅
美式别墅
日式别墅
地中海别墅
别墅热线
0746-8223678
扫一扫了解别墅
首页
>
别墅图纸
> 欧式别墅
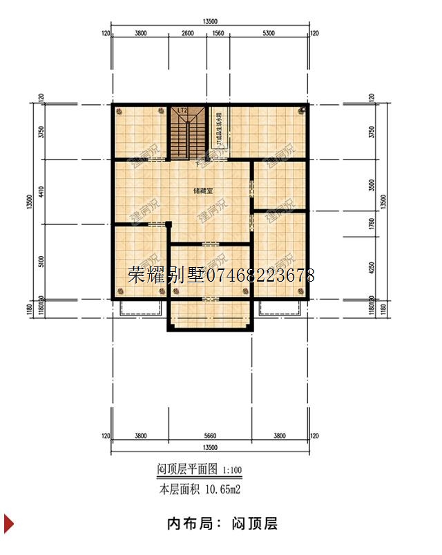
网红别墅设计图纸荣耀别墅帮您选!
2022-02-13 18:01:04
人评论
次浏览 分类:欧式别墅
网红别墅设计图纸荣耀别墅帮您选!